Nous nous soucions de votre vie privée Chez pisos.com nous utilisons nos propres cookies et ceux de tiers pour fournir un service satisfaisant grâce à des cookies techniques, de personnalisation et analytiques. Cliquez ICI pour plus d'informations. Vous pouvez accepter tous les cookies en cliquant sur le bouton «accepter» ou configurer ou refuser leur utilisation en cliquant
J'accepte Tout rejeter Configurer
Chalet à vendre à / en Escaldes-Engordany
  • 4ChambresChambres
  • 5Salles de bains
  • 900 m2
2.650.000 €
Demander des informations concernant ce bien
Envoyer
Appelez-nous maintenant
call
+376822282

Chalet à vendre à / en Escaldes-Engordany

Escaldes-Engordany

REF.: 001401 2.650.000 €
Contacter maintenant
Contacter maintenant +376822282
call
Appeler
email
Contact
call
Appeler
email
Contact
Détails du bien immobilier
  • Prix 2.650.000 €
  • Référence 001401
  • Adresse Urbanización Can Noguer
  • Quartier Escaldes-Engordany
  • Parking Oui
  • Jardin Oui
  • Terrasse Oui
  • Chambres 4
  • Salles de bains 5
  • Superficie totale 900 m2
  • Superficie du terrain 900 m2
  • Surface utile 600 m2
  • Certification énergétique
    Classification En cours
  • Description Projet de chalet spectaculaire et impressionnant sur le point d être construit situé dans l urbanisation exclusive de Can Noguer à Escaldes-Engordany, à seulement 5 minutes du centre d Andorre. Il est très lumineux, ensoleillé et avec une vue spectaculaire sur la vallée.

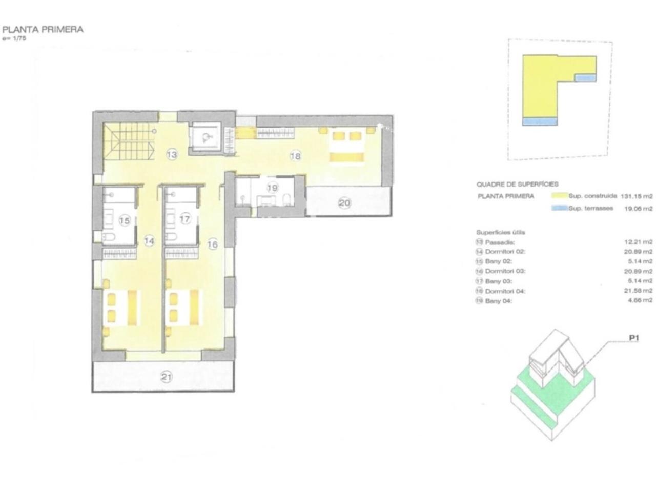
    Le chalet a 3 niveaux reliés par des escaliers et un ascenseur.

    Au niveau inférieur, nous trouvons un parking d environ 160m2 pour environ 7/8 véhicules, une salle technique et une zone de machines.

    Au rez-de-chaussée, nous avons la zone jour avec un grand salon-salle à manger d environ 64m2 avec cheminée, une cuisine ouverte avec un îlot central entièrement équipée avec des appareils haut de gamme et un accès aussi bien du salon que de la cuisine à un jardin d environ 280m2, un cabinet de toilette et une suite parentale avec une salle de bains complète avec dressing et également un accès au jardin.

    Au premier étage, nous trouvons la zone nuit avec 3 chambres doubles en suite, toutes avec dressings et salles de bains complètes avec douche, dont deux partagent une terrasse privée et l autre a également un accès direct à une terrasse.

    À ce stade de la construction, les espaces, les volumes, les distributions pourraient être modifiés, tout pour votre satisfaction !!
Adresse

Urbanización Can Noguer
Escaldes-Engordany

Téléphone

+376822282

Fax

+376 82 60 30

Email

habitarea@gmail.com

Simulez votre prêt bancaire

Calculer